32
$729,800 Sale
Listed 6 days ago
2308 6688 Arcola Street
· 2
· 2
· 2
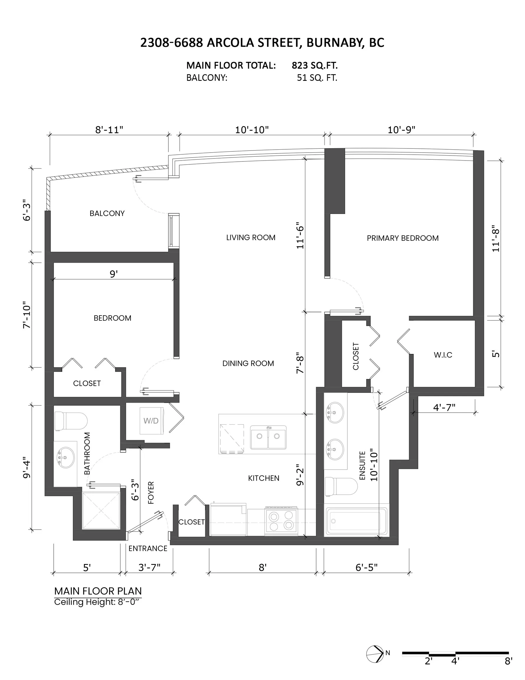
· 823
Key Facts
Key facts for 2308 6688 Arcola Street
Property Type
Condo
Parking
2 parking
MLS #
R3056569
Size
823 sqft
Basement
None
Listed on
-
Lot size
-
Tax
$2,211.36 /yr
Days on Market
-
Year Built
2011
Maintenance Fee
$394.43 /mo
Description
Welcome to "Luma," a quality-built concrete high-rise by Polygon. This bright 2 bed / 2 bath home on the 23rd floor offers stunning mountain and city views from every room and your private balcony. The open kitchen features granite countertops, stainless steel appliances, and a gas stove (gas & hot ...water included in strata). Enjoy engineered hardwood flooring, a double vanity ensuite, and a spacious layout with bedrooms on opposite sides. Amenities include a gym, yoga room, lounge, and landscaped garden. Steps to Highgate Village, Save-On-Foods, and close to Metrotown, Edmonds SkyTrain, parks, schools, the library, swimming pool, and the Japanese Cultural Centre. Includes 2 secure parking stalls and a storage locker.
Similar Properties (No results)
Room Types
Living Room
-
Dimensions 10'10 x 11'6
124.58 sqft
Dining Room
-
Dimensions 7'8 x 10'10
83.06 sqft
Kitchen
-
Dimensions 8' x 9'2
73.33 sqft
Courtesy of: eXp Realty